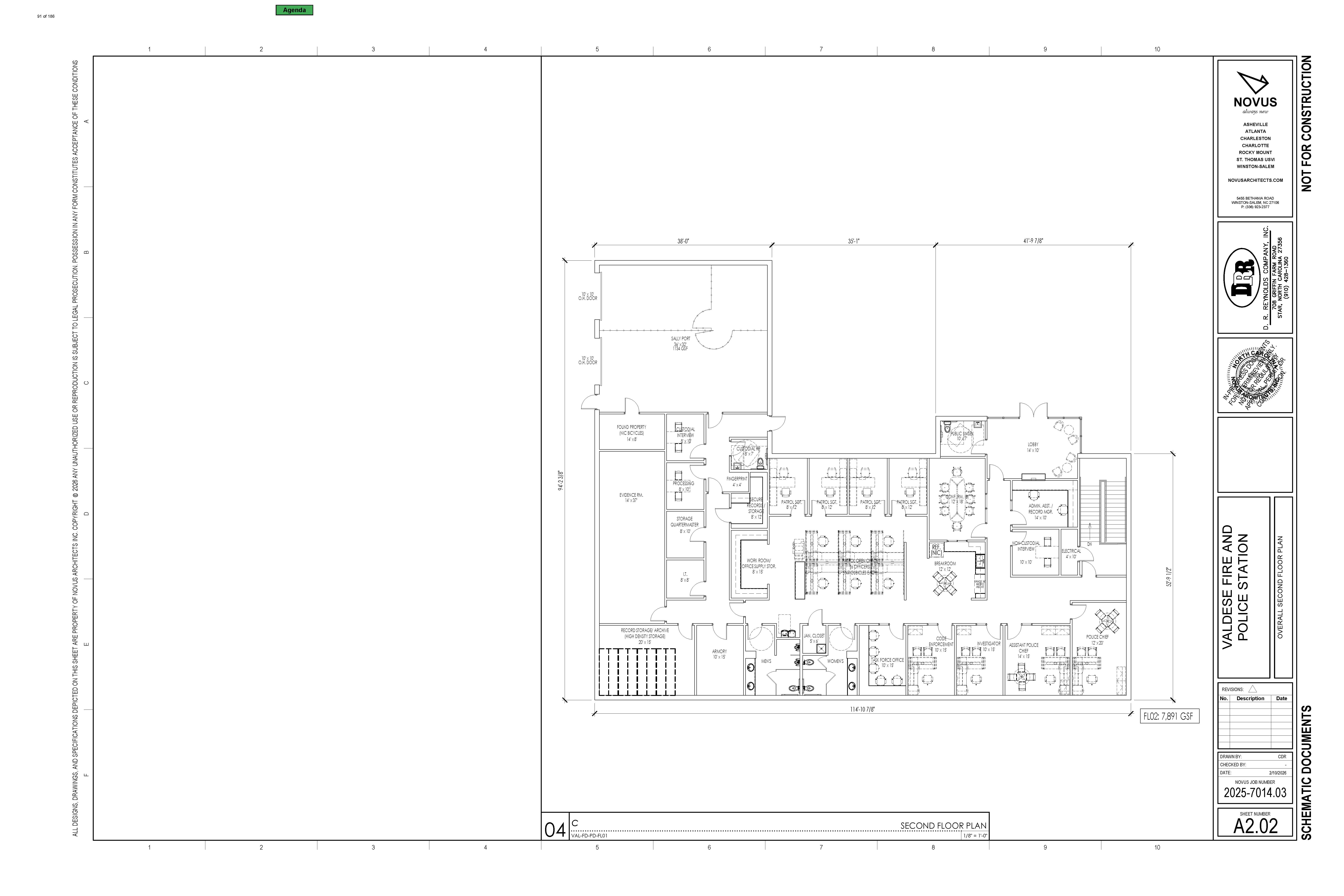
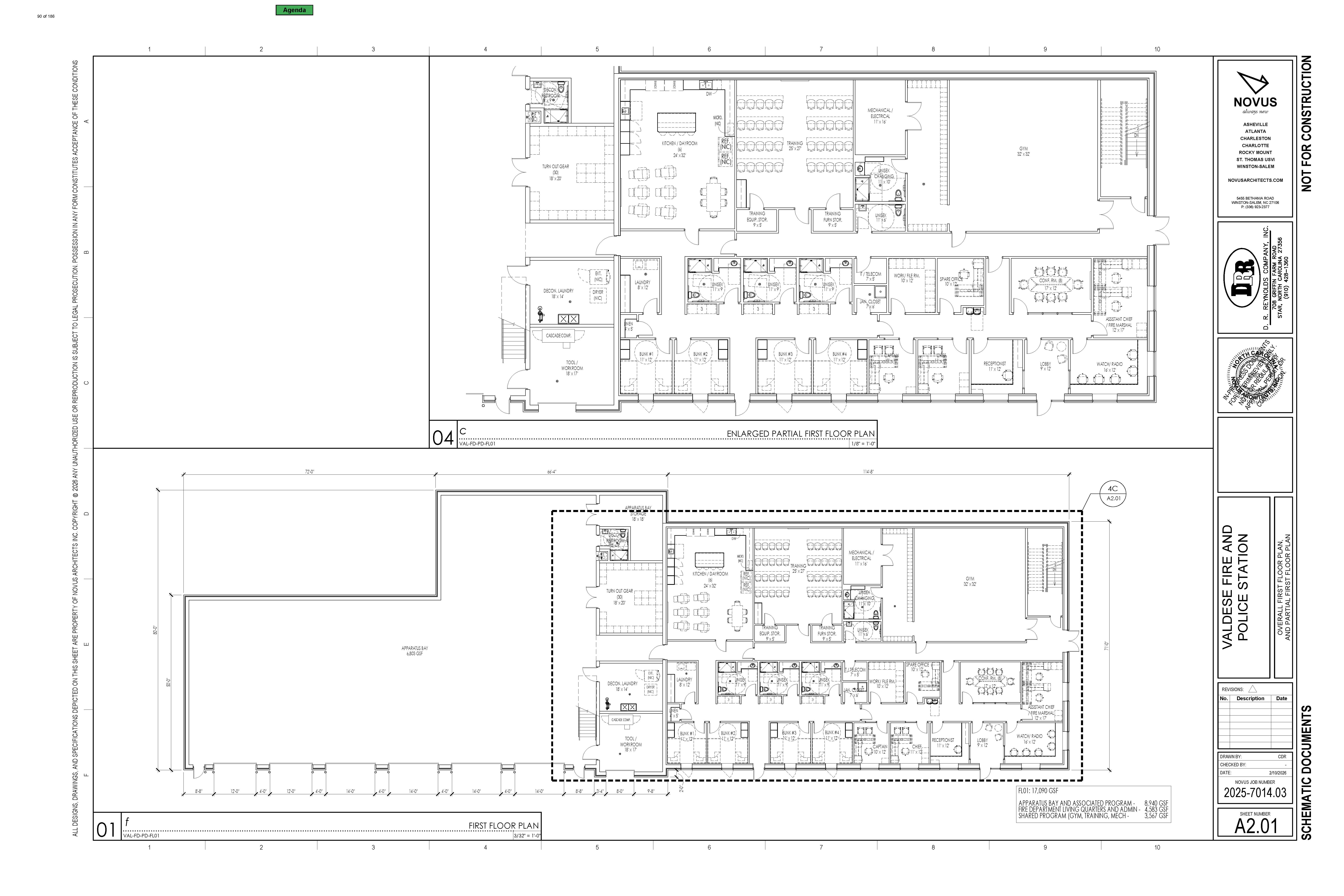
For several years, the Town of Valdese has researched and planned for a facility to house both the Fire and Police Departments. Throughout this process, the project has experienced several starts and stops, including the purchase of at least three different properties considered as potential sites. To move the project forward with clearer direction, the Town contracted with DR Reynolds to conduct a comprehensive feasibility study. Following that study, the Town Council voted to proceed with a proposed floor plan concept. The attached draft floor plan represents the next step in the process and will be used to develop construction documents for permitting and to obtain a Guaranteed Maximum Price (GMP) for the project.



Related Pages






